Wierdijk 103
1689WD ZWAAG
Verkocht
Verkocht
Omschrijving
Wonen aan het water met alle comfort? Dat kan aan de Wierdijk 103 in Zwaag! Deze energiezuinige woning heeft niet alleen een luxe afwerking maar ook een prachtige ligging aan het water met een heerlijke overkapping. De woning is tot in de puntjes verzorgd, met strak schilderwerk uit 2024 en een stijlvol interieur. Hier woon je rustig, comfortabel én met alle voorzieningen vlakbij. Een buitenkans!
Wat je hier onder meer kunt verwachten:
- Energielabel A en een verzorgde staat van onderhoud;
- Woonkamer met vloerverwarming, zijraam voor extra licht en handige trapkast;
- Luxe keuken in antraciet met natuurstenen blad en breed fornuis;
- Mooie hal/entree met nette toiletruimte;
- Drie slaapkamers op de eerste verdieping, waarvan één ruime aan de voorzijde;
- Badkamer met douche, toilet, wastafel en stijlvolle nisjes;
- Grote zolder met overloop, dakraam en aparte wasruimte met CV;
- Vierde slaapkamer op zolder met dakraam;
- 9 zonnepanelen voor een lage energierekening;
- Tuin aan het water met overkapping, zonnescherm, berging en achterom.
- De richtprijs bedraagt € 515.000,- k.k.
De keuken is een echte eyecatcher: strak, stoer en praktisch. Uitgevoerd in stijlvol antraciet met een natuurstenen werkblad en mooi breed kooktoestel met oven. Aan de voorzijde gelegen en voorzien van alle benodigde inbouwapparatuur. Hier kook je met plezier!
De tuin maakt het plaatje helemaal compleet. Gelegen aan het water, een zonnescherm voor warme dagen én een fantastische overkapping direct aan het water. Hier is het op zwoele zomeravonden écht genieten. Dankzij de berging én achterom is het ook nog eens heel praktisch.
Zie jij jezelf hier al wonen? De richtprijs is € 515.000,- k.k. en de oplevering stemmen we in overleg met elkaar af. Bel ons op 0229 27 96 97 voor een uitgebreide rondleiding. We laten je deze fijne woning graag zien!
Heb je behoefte aan een professional die je adviseert? Schakel dan je eigen NVM-aankoopmakelaar in. Jouw NVM-aankoopmakelaar komt op voor jouw belang en bespaart je tijd, geld en zorgen. Adressen van collega NVM-aankoopmakelaars vind je op Funda.
Wat je hier onder meer kunt verwachten:
- Energielabel A en een verzorgde staat van onderhoud;
- Woonkamer met vloerverwarming, zijraam voor extra licht en handige trapkast;
- Luxe keuken in antraciet met natuurstenen blad en breed fornuis;
- Mooie hal/entree met nette toiletruimte;
- Drie slaapkamers op de eerste verdieping, waarvan één ruime aan de voorzijde;
- Badkamer met douche, toilet, wastafel en stijlvolle nisjes;
- Grote zolder met overloop, dakraam en aparte wasruimte met CV;
- Vierde slaapkamer op zolder met dakraam;
- 9 zonnepanelen voor een lage energierekening;
- Tuin aan het water met overkapping, zonnescherm, berging en achterom.
- De richtprijs bedraagt € 515.000,- k.k.
De keuken is een echte eyecatcher: strak, stoer en praktisch. Uitgevoerd in stijlvol antraciet met een natuurstenen werkblad en mooi breed kooktoestel met oven. Aan de voorzijde gelegen en voorzien van alle benodigde inbouwapparatuur. Hier kook je met plezier!
De tuin maakt het plaatje helemaal compleet. Gelegen aan het water, een zonnescherm voor warme dagen én een fantastische overkapping direct aan het water. Hier is het op zwoele zomeravonden écht genieten. Dankzij de berging én achterom is het ook nog eens heel praktisch.
Zie jij jezelf hier al wonen? De richtprijs is € 515.000,- k.k. en de oplevering stemmen we in overleg met elkaar af. Bel ons op 0229 27 96 97 voor een uitgebreide rondleiding. We laten je deze fijne woning graag zien!
Heb je behoefte aan een professional die je adviseert? Schakel dan je eigen NVM-aankoopmakelaar in. Jouw NVM-aankoopmakelaar komt op voor jouw belang en bespaart je tijd, geld en zorgen. Adressen van collega NVM-aankoopmakelaars vind je op Funda.
Foto's
Kenmerken
Overdracht
- Aangeboden sinds
- 14 oktober 2025
- Status
- Verkocht
- Aanvaarding
- In overleg
Bouw
- Soort woning
- Woonhuis
- Bouwjaar
- 2008
- Soort dak
- Zadeldak
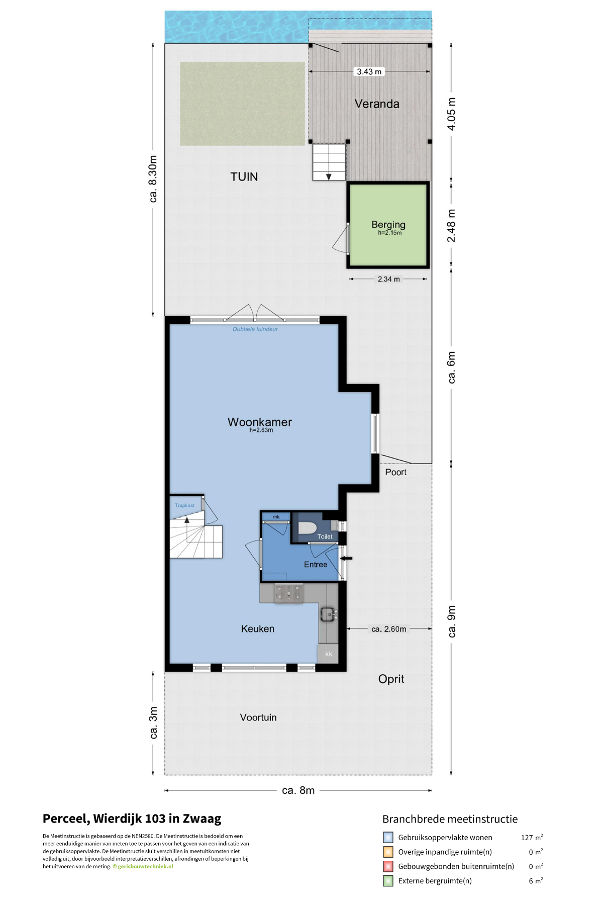
Oppervlakten en inhoud
- Oppervlakte wonen
- 127 m²
- Oppervlakte externe bergruimte
- 6 m²
- Perceel
- 185 m²
- Inhoud
- 457 m³
Indeling
- Aantal kamers
- 6
- Aantal slaapkamers
- 4
- Aantal badkamers
- 1
- Badkamervoorzieningen
- Toilet, wastafelmeubel en inloopdouche
- Aantal woonlagen
- 3
- Voorzieningen
- Mechanische ventilatie, tv-kabel en zonnepanelen
Energie
- Energielabel
- A
- Isolatie
- Volledig geïsoleerd
- Verwarming
- Cv-ketel
- Warm water
- Cv-ketel
- Cv-ketel
- Intergas HR (combiketel uit 2008)
Buitenruimte
- Ligging
- Aan water, in woonwijk en aan vaarwater
- Tuin
- Achtertuin en voortuin
- Achtertuin
- 66 m² gelegen op het zuidwesten met achterom
Bergruimte
- Schuur/berging
- Vrijstaand hout
- Voorzieningen
- Voorzien van elektra
Garage
- Soort garage
- Geen garage