Venenlaan 6
1623RH HOORN
Verkocht
Verkocht
Omschrijving
Welkom bij Venenlaan 6 in Hoorn! Een charmante eengezinswoning uit 1915, bijzonder sfeervol, verrassend ruim en voorzien van modern comfort. Hier proef je de warmte van een huis dat met liefde is onderhouden. We nemen je graag mee naar binnen!
Wat maakt dit huis zo bijzonder?
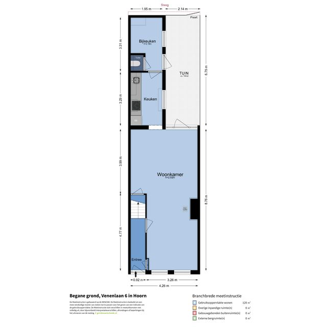
- Maar liefst 120 m² woonplezier met een slimme indeling;
- Vier slaapkamers en een aparte berg-/waskamer;
- Een gezellige woonkamer met prachtige eiken vloer en houtkachel;
- Openslaande deuren naar een knusse binnenstadstuin;
- Keuken met een stoer zwart aanrechtblad en alle apparatuur die je nodig hebt;
- Hoge plafonds op de begane grond en 1e verdieping;
- Eventuele mogelijkheid voor het creëren van een balkon;
- Zeer luxe en complete badkamer;
- Sfeervolle warme VT-Wonen tinten op de muur;
- Kunststof kozijnen en isolatieglas voor optimaal wooncomfort;
- Zonnepanelen (7 stuks) en een warmtepomp uit 2025;
- Handige berging en een achterom;
- Energielabel A;
- Parkeren? Dat kan gewoon voor de deur!
Op de eerste verdieping vind je een fraaie master bedroom met vaste kastenwand en mooi gestuukt plafond met inbouwspots. Verder een ruime en sfeervolle tweede slaapkamer met vaste kast voor extra bergruimte. De badkamer is hier echt het pronkstuk: een prachtige, luxe ruimte met inloopdouche, wandcloset, dubbel wastafelmeubel en vloerverwarming. Mooi afgewerkt met beton ciré, fraai tegelwerk én een loopdeur naar het platte dak voor een vleugje extra buitenruimte.
De tweede verdieping biedt nog eens twee fijne slaapkamers en een handige berg-/waskamer met dakraam. De hoge plafonds en het licht maken dit huis extra ruimtelijk en sfeervol.
De ligging? Perfect! Aan de rand van het historische centrum van Hoorn in het prachtige "Venenlaankwartier", groenrijk, heerlijk rustig en toch op loopafstand van alle voorzieningen. Gezellige terrasjes, fijne winkels en het station zijn allemaal binnen handbereik.
De richtprijs is € 525.000,- k.k. Zie jij jezelf hier al wonen? Kom dan snel kijken en laat je verrassen door de charme en het comfort van dit fijne huis. Bel ons op 0229 27 96 97 voor een afspraak en wie weet wordt dit jouw nieuwe thuis!
Heb je behoefte aan een professional die je adviseert? Schakel dan je eigen NVM-aankoopmakelaar in. Jouw NVM-aankoopmakelaar komt op voor jouw belang en bespaart je tijd, geld en zorgen. Adressen van collega NVM-aankoopmakelaars vind je op Funda.
Wat maakt dit huis zo bijzonder?
- Maar liefst 120 m² woonplezier met een slimme indeling;
- Vier slaapkamers en een aparte berg-/waskamer;
- Een gezellige woonkamer met prachtige eiken vloer en houtkachel;
- Openslaande deuren naar een knusse binnenstadstuin;
- Keuken met een stoer zwart aanrechtblad en alle apparatuur die je nodig hebt;
- Hoge plafonds op de begane grond en 1e verdieping;
- Eventuele mogelijkheid voor het creëren van een balkon;
- Zeer luxe en complete badkamer;
- Sfeervolle warme VT-Wonen tinten op de muur;
- Kunststof kozijnen en isolatieglas voor optimaal wooncomfort;
- Zonnepanelen (7 stuks) en een warmtepomp uit 2025;
- Handige berging en een achterom;
- Energielabel A;
- Parkeren? Dat kan gewoon voor de deur!
Op de eerste verdieping vind je een fraaie master bedroom met vaste kastenwand en mooi gestuukt plafond met inbouwspots. Verder een ruime en sfeervolle tweede slaapkamer met vaste kast voor extra bergruimte. De badkamer is hier echt het pronkstuk: een prachtige, luxe ruimte met inloopdouche, wandcloset, dubbel wastafelmeubel en vloerverwarming. Mooi afgewerkt met beton ciré, fraai tegelwerk én een loopdeur naar het platte dak voor een vleugje extra buitenruimte.
De tweede verdieping biedt nog eens twee fijne slaapkamers en een handige berg-/waskamer met dakraam. De hoge plafonds en het licht maken dit huis extra ruimtelijk en sfeervol.
De ligging? Perfect! Aan de rand van het historische centrum van Hoorn in het prachtige "Venenlaankwartier", groenrijk, heerlijk rustig en toch op loopafstand van alle voorzieningen. Gezellige terrasjes, fijne winkels en het station zijn allemaal binnen handbereik.
De richtprijs is € 525.000,- k.k. Zie jij jezelf hier al wonen? Kom dan snel kijken en laat je verrassen door de charme en het comfort van dit fijne huis. Bel ons op 0229 27 96 97 voor een afspraak en wie weet wordt dit jouw nieuwe thuis!
Heb je behoefte aan een professional die je adviseert? Schakel dan je eigen NVM-aankoopmakelaar in. Jouw NVM-aankoopmakelaar komt op voor jouw belang en bespaart je tijd, geld en zorgen. Adressen van collega NVM-aankoopmakelaars vind je op Funda.
Foto's
Kenmerken
Overdracht
- Aangeboden sinds
- 14 oktober 2025
- Status
- Verkocht
- Aanvaarding
- In overleg
Bouw
- Soort woning
- Woonhuis
- Bouwjaar
- 1915
- Soort dak
- Samengesteld dak
Oppervlakten en inhoud
- Oppervlakte wonen
- 120 m²
- Perceel
- 77 m²
- Inhoud
- 417 m³
Indeling
- Aantal kamers
- 7
- Aantal slaapkamers
- 4
- Aantal badkamers
- 1
- Badkamervoorzieningen
- Toilet, douche en wastafelmeubel
- Aantal woonlagen
- 3
- Voorzieningen
- Dakraam, glasvezel kabel en zonnepanelen
Energie
- Energielabel
- A
- Isolatie
- Dakisolatie, muurisolatie en dubbel glas
- Verwarming
- Cv-ketel, warmtepomp en houtkachel
- Warm water
- Cv-ketel
- Cv-ketel
- Remeha HR (combiketel uit 2011)
Buitenruimte
- Ligging
- Aan rustige weg, in centrum en beschutte ligging
- Tuin
- Achtertuin
- Achtertuin
- 14 m² gelegen op het zuidoosten met achterom
Bergruimte
- Schuur/berging
- Aangebouwd steen
Garage
- Soort garage
- Geen garage