Tinnegieter 108
1625AW HOORN
Verkocht
Verkocht
Omschrijving
Let op! Het betreft een bieden vanafprijs!
Fantastisch geschakeld, en levensloop bestendig, vrijstaand huis op Tinnegieter 108 in Hoorn!
Stel je voor: een schitterend huis met een riante slaapkamer en badkamer op de begane grond, een prachtige vide en gelegen in een zeer geliefde, rustige, groene buurt. Dit huis biedt een perfecte combinatie van comfort, stijl en gemak. De historische binnenstad van Hoorn ligt op slechts 10 minuten fietsen. Daarnaast vind je een prachtig park vlak achter de woning, ideaal voor liefhebbers van natuur en wandelen.
Wonen en leven:
De ruime woonkamer met grote raampartijen zorgt voor veel natuurlijk licht en geeft dankzij de vide een speels effect. Een onderhoudsvriendelijke plavuizen vloer in neutrale tinten past bij elke woonstijl. De open haard maakt avonden knus en behaaglijk. In 2022 is grotendeels het dak van binnenuit na-geïsoleerd, net als de spouwmuren en de begane grond vloer.
Koken en dineren:
De half-open keuken is een fijne plek voor kookliefhebbers. Uitgevoerd in grijze tinten met een stoer zwart natuurstenen werkblad en voorzien van alle gemakken zoals een heteluchtoven, koelkast, 5-pits gaskookplaat, afzuigkap, vriezer en vaatwasser. Koken wordt hier een plezier!
Slaapkamers en badkamer:
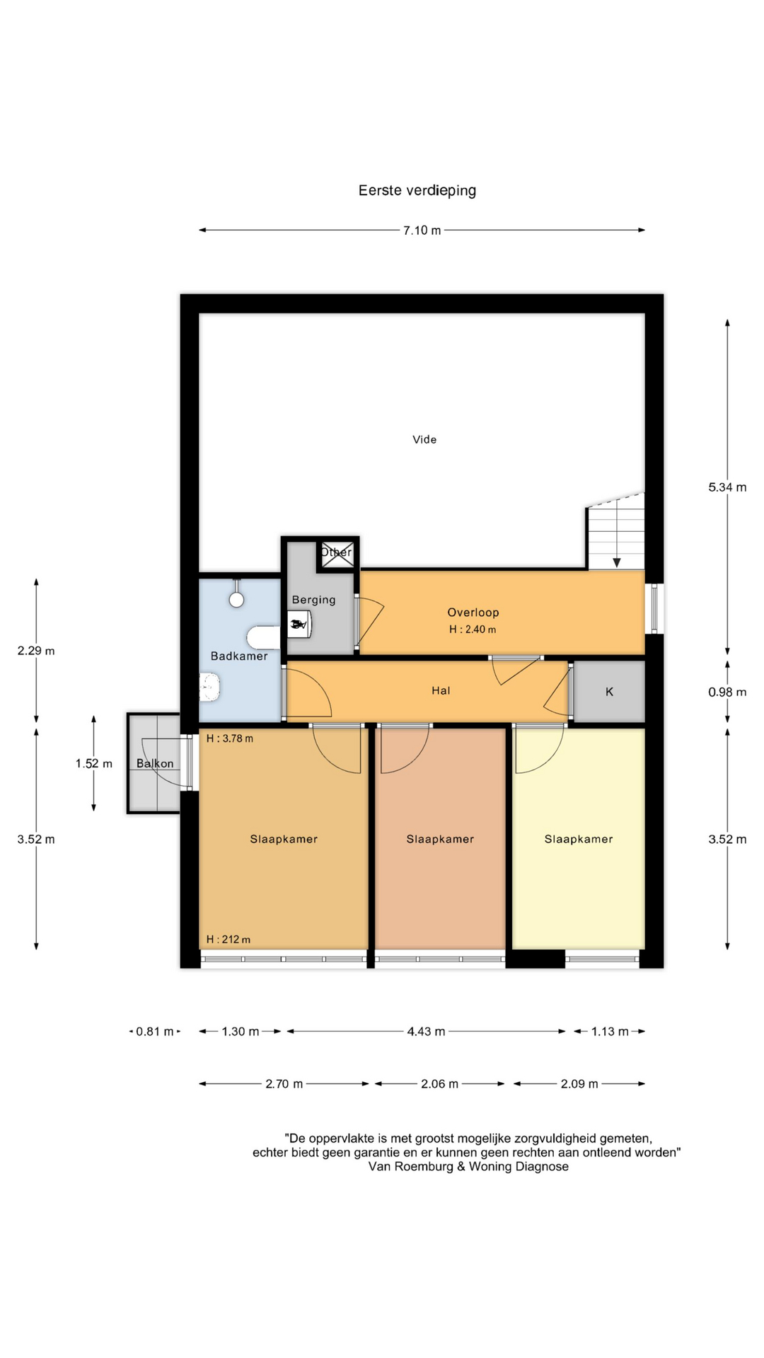
Beneden vind je een heerlijke slaapkamer met een mooie linoleum vloer en een ruime kastenwand voor al je spullen. De badkamer is uitgevoerd in neutrale witte en stijlvolle grijze tinten en beschikt over een inloopdouche, een prachtig wastafelmeubel en een design handdoekenradiator. Daarnaast zijn er op de eerste verdieping naast de vide met een bergkast met CV ketel (bouwjaar 2022) nog drie goed formaat slaapkamers aanwezig én een (eenvoudige) badkamer met douche, wastafel en toilet.
Buitenleven:
De grote glazen pui met loopdeur leidt je naar de fantastische tuin. Hier is het echt genieten geblazen! Vrijstaand, prachtig aangelegd met schitterende planten, diverse terrassen, een vijver, een chalet en een siergazon. Privacy en rust gegarandeerd. Elke dag voelt alsof je op vakantie bent!
Extra's:
- Parkeren is geen probleem met ruimte voor meerdere auto's op de eigen oprit.
- De garage biedt nog meer gemak met een radiator, wasmachine en droger, gootsteen en een handige vliering.
- Recent zijn het voegwerk en de goten vernieuwd.
- Kunststof kozijnen zorgen voor onderhoudsvriendelijkheid.
- De woning is voorzien van Keralite gevelbekleding.
- 2022 Intergas HR Eco voor efficiënte verwarming.
- Energielabel C.
Handige voorzieningen in de buurt:
- Op slechts 10 minuten fietsen van het centrum van Hoorn en het station.
- Dichtbij winkelcentrum De Huesmolen, scholen, park De Blauwe Berg en de VUE bioscoop.
- Directe verbindingsweg naar de A7.
Wil je dit fantastische vrijstaande huis zelf komen ervaren? Bel ons dan op 0229 27 96 97 en maak een afspraak voor een rondleiding. We laten je graag alles zien! De bieden vanaf prijs bedraagt € 550.000,- k.k.
Mis deze kans niet en neem vandaag nog contact op! Je kunt ons bereiken op 0229 27 96 97. Schakel je eigen NVM-aankoopmakelaar in om jouw belangen te behartigen en het koopproces soepel te laten verlopen.
Fantastisch geschakeld, en levensloop bestendig, vrijstaand huis op Tinnegieter 108 in Hoorn!
Stel je voor: een schitterend huis met een riante slaapkamer en badkamer op de begane grond, een prachtige vide en gelegen in een zeer geliefde, rustige, groene buurt. Dit huis biedt een perfecte combinatie van comfort, stijl en gemak. De historische binnenstad van Hoorn ligt op slechts 10 minuten fietsen. Daarnaast vind je een prachtig park vlak achter de woning, ideaal voor liefhebbers van natuur en wandelen.
Wonen en leven:
De ruime woonkamer met grote raampartijen zorgt voor veel natuurlijk licht en geeft dankzij de vide een speels effect. Een onderhoudsvriendelijke plavuizen vloer in neutrale tinten past bij elke woonstijl. De open haard maakt avonden knus en behaaglijk. In 2022 is grotendeels het dak van binnenuit na-geïsoleerd, net als de spouwmuren en de begane grond vloer.
Koken en dineren:
De half-open keuken is een fijne plek voor kookliefhebbers. Uitgevoerd in grijze tinten met een stoer zwart natuurstenen werkblad en voorzien van alle gemakken zoals een heteluchtoven, koelkast, 5-pits gaskookplaat, afzuigkap, vriezer en vaatwasser. Koken wordt hier een plezier!
Slaapkamers en badkamer:
Beneden vind je een heerlijke slaapkamer met een mooie linoleum vloer en een ruime kastenwand voor al je spullen. De badkamer is uitgevoerd in neutrale witte en stijlvolle grijze tinten en beschikt over een inloopdouche, een prachtig wastafelmeubel en een design handdoekenradiator. Daarnaast zijn er op de eerste verdieping naast de vide met een bergkast met CV ketel (bouwjaar 2022) nog drie goed formaat slaapkamers aanwezig én een (eenvoudige) badkamer met douche, wastafel en toilet.
Buitenleven:
De grote glazen pui met loopdeur leidt je naar de fantastische tuin. Hier is het echt genieten geblazen! Vrijstaand, prachtig aangelegd met schitterende planten, diverse terrassen, een vijver, een chalet en een siergazon. Privacy en rust gegarandeerd. Elke dag voelt alsof je op vakantie bent!
Extra's:
- Parkeren is geen probleem met ruimte voor meerdere auto's op de eigen oprit.
- De garage biedt nog meer gemak met een radiator, wasmachine en droger, gootsteen en een handige vliering.
- Recent zijn het voegwerk en de goten vernieuwd.
- Kunststof kozijnen zorgen voor onderhoudsvriendelijkheid.
- De woning is voorzien van Keralite gevelbekleding.
- 2022 Intergas HR Eco voor efficiënte verwarming.
- Energielabel C.
Handige voorzieningen in de buurt:
- Op slechts 10 minuten fietsen van het centrum van Hoorn en het station.
- Dichtbij winkelcentrum De Huesmolen, scholen, park De Blauwe Berg en de VUE bioscoop.
- Directe verbindingsweg naar de A7.
Wil je dit fantastische vrijstaande huis zelf komen ervaren? Bel ons dan op 0229 27 96 97 en maak een afspraak voor een rondleiding. We laten je graag alles zien! De bieden vanaf prijs bedraagt € 550.000,- k.k.
Mis deze kans niet en neem vandaag nog contact op! Je kunt ons bereiken op 0229 27 96 97. Schakel je eigen NVM-aankoopmakelaar in om jouw belangen te behartigen en het koopproces soepel te laten verlopen.
Foto's
Kenmerken
Overdracht
- Aangeboden sinds
- 14 oktober 2025
- Status
- Verkocht
- Aanvaarding
- In overleg
Bouw
- Soort woning
- Woonhuis
- Bouwjaar
- 1974
- Soort dak
- Zadeldak
Oppervlakten en inhoud
- Oppervlakte wonen
- 115 m²
- Oppervlakte gebouwgebonden buitenruimte
- 1 m²
- Oppervlakte externe bergruimte
- 26 m²
- Perceel
- 429 m²
- Inhoud
- 530 m³
Indeling
- Aantal kamers
- 5
- Aantal slaapkamers
- 4
- Aantal badkamers
- 2
- Badkamervoorzieningen
- Douche, wastafelmeubel, toilet en wastafel
- Aantal woonlagen
- 2
- Voorzieningen
- Mechanische ventilatie, tv-kabel en rookkanaal
Energie
- Energielabel
- C
- Isolatie
- Dakisolatie, muurisolatie, vloerisolatie en dubbel glas
- Verwarming
- Cv-ketel
- Warm water
- Cv-ketel
- Cv-ketel
- Hr combi (combiketel uit 2022)
Buitenruimte
- Ligging
- Aan rustige weg, in woonwijk en beschutte ligging
- Tuin
- Achtertuin en voortuin
- Achtertuin
- 179 m² gelegen op het oosten met achterom
Bergruimte
- Schuur/berging
- Vrijstaand hout
Garage
- Soort garage
- Aangebouwd steen
- Capaciteit
- 1
- Voorzieningen
- Verwarming, water en elektrische deur