Karos 78
1625HT HOORN
Te Koop
Verkocht onder voorbehoud
€ 495.000,- k.k.
Omschrijving
Wauw, wauw en nog eens wauw!
De Karos 78 geeft je dit gevoel. Deze hoekwoning heeft verrassend veel leefruimte maar ook nog eens een luxe bijgebouw, hierover lees je verderop meer. De afgelopen jaren is veel verbouwd, vernieuwd en verduurzaamd aan de woning. Zo zijn er overal kunststof kozijnen met nieuwe gevelbekleding en is er een dakkapel geplaatst.
Wat je onder meer kunt verwachten:
- Kunststof kozijnen (2020) en onderhoudsvriendelijke gevelbekleding;
- 10 zonnepanelen en een thuisbatterij (10 kW);
- Begane grond met vloerverwarming en na-geïsoleerde kruipruimte;
- Spouw (westzijde) na geïsoleerd, ook die van het bijgebouw;
- Ruime recent vernieuwde woonkeuken met inductie kookplaat en geïntegreerde afzuiging, koelkast/vriezer, vaatwasser, apothekerskast en keukeneiland;
- Bijkeuken met vloerverwarming, wasmachine/droger-aansluitingen en extra bergruimte;
- Toilet met een fonteintje;
- Eerste verdieping met twee ruime slaapkamers achter;
- Slaapkamer aan voorzijde met voorbereiding voor het vergroten van de badkamer;
- Badkamer met inloopdouche, wastafelmeubel en wandcloset;
- Tweede verdieping (ca. 24 m²) met dakkapel aan achterzijde, twee dakramen aan voorzijde, keukenblok en eigen badkamer;
- Tuin op het zuiden en het noorden;
- Stenen berging van ca. 6 m² met verlichting;
- Carport op eigen terrein.
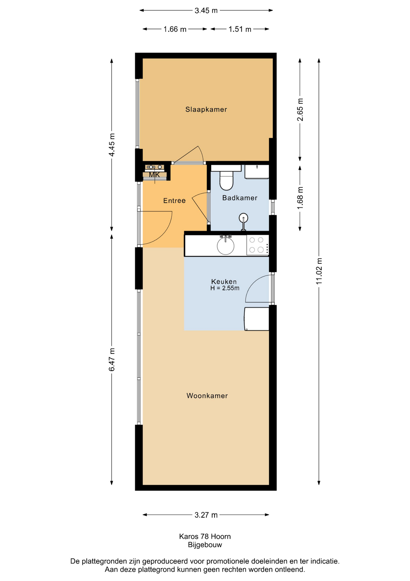
Bijgebouw (ca. 36 m²):
Een grote meerwaarde is het vrijstaande, volledig uitgeruste bijgebouw. Voorzien van geïsoleerde betonvloer, vloerverwarming, eigen keuken met kookplaat en oven, badkamer met douche, wandcloset en wastafelmeubel én een aparte slaapkamer. Ideaal als mantelzorgwoning, studio, praktijkruimte of logeerplek. Het sedum (groene dak) is ook lekker duurzaam!
De tuin – voor en achter – is ronduit heerlijk. Aan de achterzijde vind je groene beplanting, een klein gazon (kunstgras) en een zonnig terras waar het tot laat op de dag genieten is. Ook aan de voorzijde is gedacht aan sfeer en comfort: veel groen, een tweede terras én een groot zonnescherm voor de warme dagen.
De ligging is ideaal: op slechts 2 minuten lopen van winkelcentrum De Huesmolen met een compleet aanbod aan winkels en voorzieningen. Binnen 10 fietsminuten sta je midden in het bruisende centrum van Hoorn. Schuin aan de overkant loop je zó een heerlijk park in – perfect voor een wandeling of een momentje rust. Aangenamer kan bijna niet.
Het energielabel is C, dit is echter nog een verouderd label dat is afgegeven voordat alle werkzaamheden aan de woning zijn uitgevoerd.
Zie jij jezelf hier al wonen? De richtprijs is € 495.000,- k.k. en de oplevering stemmen we uiteraard in goed overleg met elkaar af. Bel ons op 0229 27 96 97 voor een bezichtiging. We laten je deze veelzijdige woning met veel plezier zien!
Heb je behoefte aan een professional die je adviseert? Schakel dan je eigen NVM-aankoopmakelaar in. Jouw NVM-aankoopmakelaar komt op voor jouw belang en bespaart je tijd, geld en zorgen. Adressen van collega NVM-aankoopmakelaars vind je op Funda.
De Karos 78 geeft je dit gevoel. Deze hoekwoning heeft verrassend veel leefruimte maar ook nog eens een luxe bijgebouw, hierover lees je verderop meer. De afgelopen jaren is veel verbouwd, vernieuwd en verduurzaamd aan de woning. Zo zijn er overal kunststof kozijnen met nieuwe gevelbekleding en is er een dakkapel geplaatst.
Wat je onder meer kunt verwachten:
- Kunststof kozijnen (2020) en onderhoudsvriendelijke gevelbekleding;
- 10 zonnepanelen en een thuisbatterij (10 kW);
- Begane grond met vloerverwarming en na-geïsoleerde kruipruimte;
- Spouw (westzijde) na geïsoleerd, ook die van het bijgebouw;
- Ruime recent vernieuwde woonkeuken met inductie kookplaat en geïntegreerde afzuiging, koelkast/vriezer, vaatwasser, apothekerskast en keukeneiland;
- Bijkeuken met vloerverwarming, wasmachine/droger-aansluitingen en extra bergruimte;
- Toilet met een fonteintje;
- Eerste verdieping met twee ruime slaapkamers achter;
- Slaapkamer aan voorzijde met voorbereiding voor het vergroten van de badkamer;
- Badkamer met inloopdouche, wastafelmeubel en wandcloset;
- Tweede verdieping (ca. 24 m²) met dakkapel aan achterzijde, twee dakramen aan voorzijde, keukenblok en eigen badkamer;
- Tuin op het zuiden en het noorden;
- Stenen berging van ca. 6 m² met verlichting;
- Carport op eigen terrein.
Bijgebouw (ca. 36 m²):
Een grote meerwaarde is het vrijstaande, volledig uitgeruste bijgebouw. Voorzien van geïsoleerde betonvloer, vloerverwarming, eigen keuken met kookplaat en oven, badkamer met douche, wandcloset en wastafelmeubel én een aparte slaapkamer. Ideaal als mantelzorgwoning, studio, praktijkruimte of logeerplek. Het sedum (groene dak) is ook lekker duurzaam!
De tuin – voor en achter – is ronduit heerlijk. Aan de achterzijde vind je groene beplanting, een klein gazon (kunstgras) en een zonnig terras waar het tot laat op de dag genieten is. Ook aan de voorzijde is gedacht aan sfeer en comfort: veel groen, een tweede terras én een groot zonnescherm voor de warme dagen.
De ligging is ideaal: op slechts 2 minuten lopen van winkelcentrum De Huesmolen met een compleet aanbod aan winkels en voorzieningen. Binnen 10 fietsminuten sta je midden in het bruisende centrum van Hoorn. Schuin aan de overkant loop je zó een heerlijk park in – perfect voor een wandeling of een momentje rust. Aangenamer kan bijna niet.
Het energielabel is C, dit is echter nog een verouderd label dat is afgegeven voordat alle werkzaamheden aan de woning zijn uitgevoerd.
Zie jij jezelf hier al wonen? De richtprijs is € 495.000,- k.k. en de oplevering stemmen we uiteraard in goed overleg met elkaar af. Bel ons op 0229 27 96 97 voor een bezichtiging. We laten je deze veelzijdige woning met veel plezier zien!
Heb je behoefte aan een professional die je adviseert? Schakel dan je eigen NVM-aankoopmakelaar in. Jouw NVM-aankoopmakelaar komt op voor jouw belang en bespaart je tijd, geld en zorgen. Adressen van collega NVM-aankoopmakelaars vind je op Funda.
Foto's
Kenmerken
Overdracht
- Vraagprijs
- € 495.000 k.k.
- Vraagprijs per m²
- € 3.511
- Aangeboden sinds
- 14 oktober 2025
- Status
- Verkocht onder voorbehoud
- Aanvaarding
- In overleg
Bouw
- Soort woning
- Woonhuis
- Bouwjaar
- 1977
- Soort dak
- Zadeldak
Oppervlakten en inhoud
- Oppervlakte wonen
- 141 m²
- Oppervlakte externe bergruimte
- 9 m²
- Perceel
- 237 m²
- Inhoud
- 474 m³
Indeling
- Aantal kamers
- 7
- Aantal slaapkamers
- 5
- Aantal badkamers
- 3
- Badkamervoorzieningen
- Toilet, wastafel, inloopdouche en douche
- Aantal woonlagen
- 4
- Voorzieningen
- Mechanische ventilatie, tv-kabel, buitenzonwering, dakraam en zonnepanelen
Energie
- Energielabel
- C
- Isolatie
- Dakisolatie, muurisolatie, vloerisolatie en hr glas
- Verwarming
- Cv-ketel en vloerverwarming gedeeltelijk
- Warm water
- Cv-ketel
- Cv-ketel
- Intergas (combiketel uit 2016)
Buitenruimte
- Ligging
- Aan rustige weg, in woonwijk en beschutte ligging
- Tuin
- Achtertuin en voortuin
- Voortuin
- 87 m² gelegen op het zuiden
Bergruimte
- Schuur/berging
- Vrijstaand steen
- Voorzieningen
- Voorzien van elektra
Garage
- Soort garage
- Carport