Gedempte Appelhaven 16
1621BN HOORN
Verkocht
Verkocht
Omschrijving
Wonen in de historische binnenstad van Hoorn, met het havengebied letterlijk om de hoek én volop rust in je eigen straat? Gedempte Appelhaven 16 biedt je het beste van twee werelden. Deze sfeervolle woning is met zorg afgewerkt, verrassend ruim van binnen en beschikt over een zonnige tuin op het zuiden. Hier woon je midden in het karakteristieke hart van Hoorn, in een heerlijk rustige straat, op een plek die iedere dag opnieuw een beetje voelt als vakantie.
Wat je hier onder meer kunt verwachten:
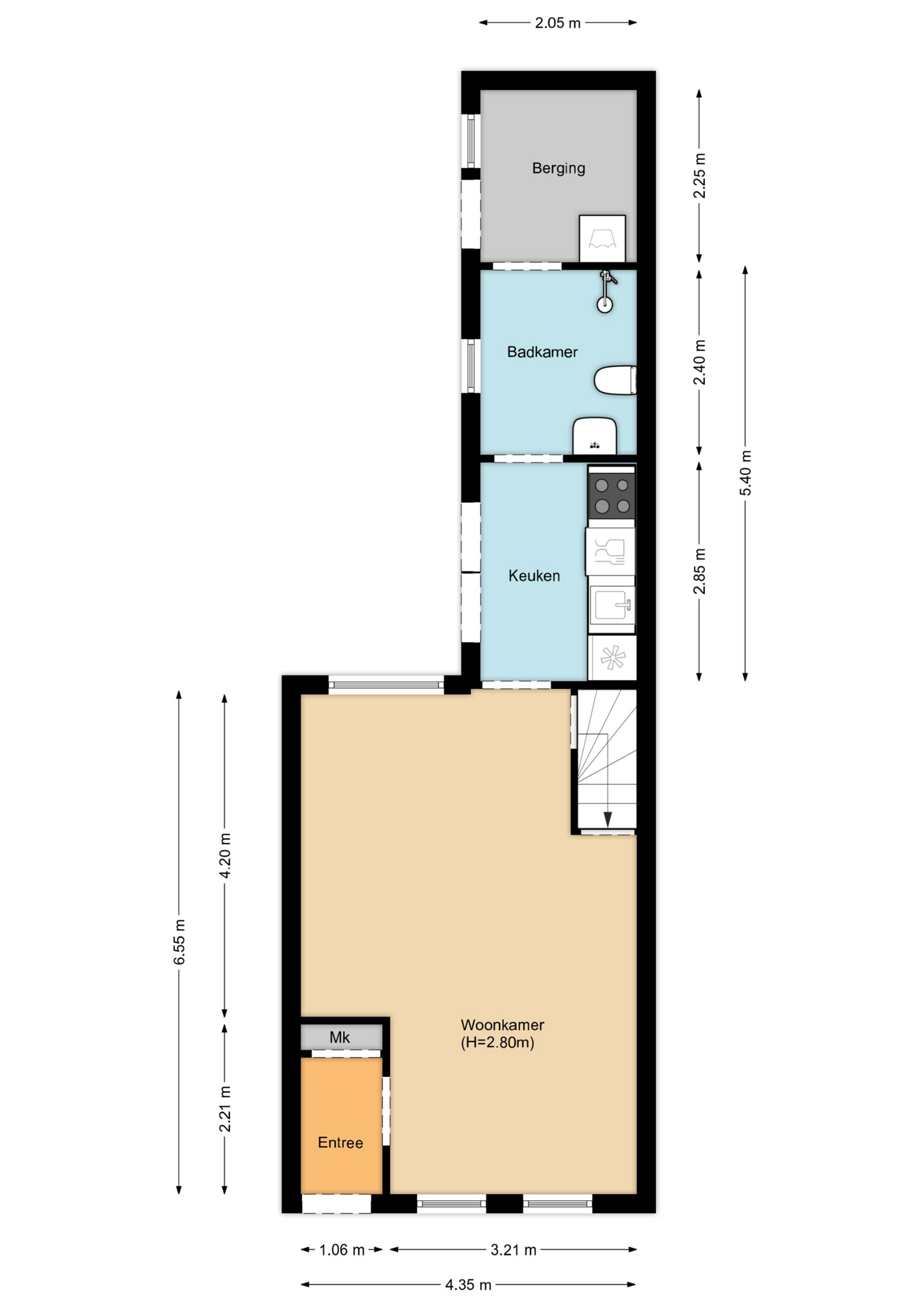
- Sfeervolle afgewerkte stadswoning in het havengebied van Hoorn;
- Woonkamer met vaste kast, gestucte wanden en warme houten vloerafwerking;
- Luxe keuken met stoer zwart werkblad en openslaande deuren naar de tuin;
- Inbouwspots in keuken, badkamer, overloop en slaapkamers;
- Badkamer met wandcloset, wastafelmeubel, douchecabine, designradiator en fraai tegelwerk;
- Twee slaapkamers op de verdieping, waarvan één met toegang tot plat dak;
- Overloop met dakkapel en veel licht;
- Berging met ruimte voor wasmachine, droger en CV-installatie (Vaillant);
- Achtertuin op het zuiden met achterom – een fijne, beschutte plek om van de zon te genieten.
De woning is van binnen met veel smaak ingericht. Denk aan een warme houten vloer in de woonkamer, strak stucwerk en een robuuste uitstraling zonder in te leveren op gezelligheid. De trap naar boven is weggewerkt achter een paneeldeur en in de vaste kast heb je praktische opbergruimte.
De keuken is stoer en stijlvol: zwart werkblad, houten fronten, een robuuste gootsteen en een losstaand fornuis met 5-pits gaskookplaat en oven. Daarnaast beschik je over een vaatwasser, koelkast met vrieslades én openslaande deuren naar de zonnige tuin. Perfect voor een ontbijt buiten of lange zomeravonden met vrienden.
De badkamer op de begane grond is verzorgd, modern en netjes afgewerkt met antraciet vloertegels, wit tegelwerk op de wand, wandcloset, douche en een strak meubel met spiegelkast.
Boven vind je twee slaapkamers met een rustige sfeer, mooie lichtinval en inbouwspots. De kamer aan de voorzijde kijkt prachtig uit op de kerk. De tweede slaapkamer heeft toegang tot het platte dak en is verrassend licht.
En dan die plek… Beter wordt het bijna niet. Je woont hier in het hart van Hoorn, midden in het bruisende havengebied, omringd door gezellige straatjes, horeca, winkels en historie. Tegelijk woon je in een rustig straatje waar je écht thuis komt. Dat maakt dit huis bijzonder.
Zie jij jezelf hier al wonen? De richtprijs is € 399.000,- k.k. en de oplevering stemmen we uiteraard in overleg met elkaar af. Bel ons op 0229 27 96 97 voor een uitgebreide bezichtiging. We laten je dit sfeervolle huis met veel plezier zien!
Heb je behoefte aan een professional die je adviseert? Schakel dan je eigen NVM-aankoopmakelaar in. Jouw NVM-aankoopmakelaar komt op voor jouw belang en bespaart je tijd, geld en zorgen. Adressen van collega NVM-aankoopmakelaars vind je op Funda.
Wat je hier onder meer kunt verwachten:
- Sfeervolle afgewerkte stadswoning in het havengebied van Hoorn;
- Woonkamer met vaste kast, gestucte wanden en warme houten vloerafwerking;
- Luxe keuken met stoer zwart werkblad en openslaande deuren naar de tuin;
- Inbouwspots in keuken, badkamer, overloop en slaapkamers;
- Badkamer met wandcloset, wastafelmeubel, douchecabine, designradiator en fraai tegelwerk;
- Twee slaapkamers op de verdieping, waarvan één met toegang tot plat dak;
- Overloop met dakkapel en veel licht;
- Berging met ruimte voor wasmachine, droger en CV-installatie (Vaillant);
- Achtertuin op het zuiden met achterom – een fijne, beschutte plek om van de zon te genieten.
De woning is van binnen met veel smaak ingericht. Denk aan een warme houten vloer in de woonkamer, strak stucwerk en een robuuste uitstraling zonder in te leveren op gezelligheid. De trap naar boven is weggewerkt achter een paneeldeur en in de vaste kast heb je praktische opbergruimte.
De keuken is stoer en stijlvol: zwart werkblad, houten fronten, een robuuste gootsteen en een losstaand fornuis met 5-pits gaskookplaat en oven. Daarnaast beschik je over een vaatwasser, koelkast met vrieslades én openslaande deuren naar de zonnige tuin. Perfect voor een ontbijt buiten of lange zomeravonden met vrienden.
De badkamer op de begane grond is verzorgd, modern en netjes afgewerkt met antraciet vloertegels, wit tegelwerk op de wand, wandcloset, douche en een strak meubel met spiegelkast.
Boven vind je twee slaapkamers met een rustige sfeer, mooie lichtinval en inbouwspots. De kamer aan de voorzijde kijkt prachtig uit op de kerk. De tweede slaapkamer heeft toegang tot het platte dak en is verrassend licht.
En dan die plek… Beter wordt het bijna niet. Je woont hier in het hart van Hoorn, midden in het bruisende havengebied, omringd door gezellige straatjes, horeca, winkels en historie. Tegelijk woon je in een rustig straatje waar je écht thuis komt. Dat maakt dit huis bijzonder.
Zie jij jezelf hier al wonen? De richtprijs is € 399.000,- k.k. en de oplevering stemmen we uiteraard in overleg met elkaar af. Bel ons op 0229 27 96 97 voor een uitgebreide bezichtiging. We laten je dit sfeervolle huis met veel plezier zien!
Heb je behoefte aan een professional die je adviseert? Schakel dan je eigen NVM-aankoopmakelaar in. Jouw NVM-aankoopmakelaar komt op voor jouw belang en bespaart je tijd, geld en zorgen. Adressen van collega NVM-aankoopmakelaars vind je op Funda.
Foto's
Kenmerken
Overdracht
- Aangeboden sinds
- 14 oktober 2025
- Status
- Verkocht
- Aanvaarding
- In overleg
Bouw
- Soort woning
- Woonhuis
- Bouwjaar
- 1910
- Soort dak
- Dwarskap
Oppervlakten en inhoud
- Oppervlakte wonen
- 57 m²
- Oppervlakte overige inpandige ruimte
- 5 m²
- Perceel
- 74 m²
- Inhoud
- 219 m³
Indeling
- Aantal kamers
- 3
- Aantal slaapkamers
- 2
- Aantal badkamers
- 1
- Badkamervoorzieningen
- Toilet, douche en wastafel
- Aantal woonlagen
- 2
- Voorzieningen
- Tv-kabel
Energie
- Energielabel
- C
- Isolatie
- Dakisolatie en dubbel glas
- Verwarming
- Cv-ketel
- Warm water
- Cv-ketel
- Cv-ketel
- Vaillant HR (combiketel uit 2008)
Buitenruimte
- Ligging
- Aan rustige weg en in centrum
- Tuin
- Achtertuin
- Achtertuin
- 17 m² gelegen op het zuidoosten met achterom
Garage
- Soort garage
- Geen garage