Bertus Aafjeshof 87
1628VL HOORN
Te Koop
€ 385.000,- k.k.
Omschrijving
Comfortabel, instapklaar én energiezuinig wonen? Dan is Bertus Aafjeshof 87 precies wat je zoekt. Deze fijne hoekwoning is licht, modern en met liefde bewoond. Met een zonnige tuin op het zuidoosten en de centrale ligging heb je een woning die direct goed voelt.
Wat je hier onder meer kunt verwachten:
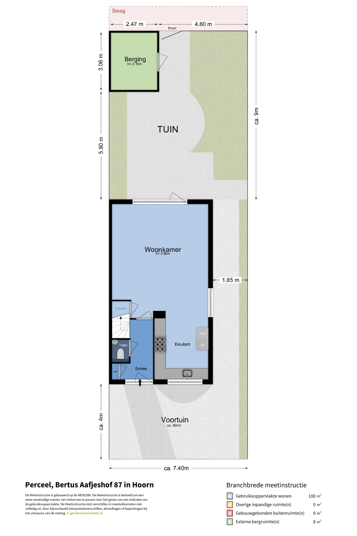
- Woonoppervlakte van 100 m² en energielabel A;
- Sfeervolle woonkamer met plavuizen vloer;
- Witte, moderne keuken met stoer werkblad en 6-pits gaskookplaat;
- Koelkast en vriezer slim verwerkt in de losstaande unit;
- Hal met nette toiletruimte;
- Eerste verdieping met drie slaapkamers;
- Nette badkamer met inloopdouche, wastafelmeubel en toilet;
- Tweede verdieping, perfect als logeerkamer met veel bergruimte en de technische installaties;
- Tuin op het zuidoost en vrijstaande berging;
- Genoeg parkeergelegenheid voor en naast de woning;
- Rustige, centrale ligging met alle voorzieningen binnen handbereik.
De woning is lekker licht door de raamkozijnen in de zijgevel en grote raamkozijn achter met loopdeur naar de tuin.
De tuin: een heerlijk zonnige plek! Een fijne stenen berging achter in de tuin voor het stallen van je fietsen is altijd prettig toch!
De Bertus Aafjeshof is centraal gelegen met winkels, scholen, sportclubs en het openbaar vervoer op korte afstand. Naar de binnenstad van Hoorn fiets je in circa 15 minuten. Kortom: een instapklare, goed onderhouden woning met alles wat je nodig hebt.
Zie jij jezelf hier al wonen? De richtprijs is € 385.000,- k.k. en de oplevering stemmen we uiteraard samen af. Bel ons op 0229 27 96 97 voor een uitgebreide rondleiding. We laten je deze fijne woning graag zien!
Heb je behoefte aan een professional die je adviseert? Schakel dan je eigen NVM-aankoopmakelaar in. Jouw NVM-aankoopmakelaar komt op voor jouw belang en bespaart je tijd, geld en zorgen. Adressen van collega NVM-aankoopmakelaars vind je op Funda.
Wat je hier onder meer kunt verwachten:
- Woonoppervlakte van 100 m² en energielabel A;
- Sfeervolle woonkamer met plavuizen vloer;
- Witte, moderne keuken met stoer werkblad en 6-pits gaskookplaat;
- Koelkast en vriezer slim verwerkt in de losstaande unit;
- Hal met nette toiletruimte;
- Eerste verdieping met drie slaapkamers;
- Nette badkamer met inloopdouche, wastafelmeubel en toilet;
- Tweede verdieping, perfect als logeerkamer met veel bergruimte en de technische installaties;
- Tuin op het zuidoost en vrijstaande berging;
- Genoeg parkeergelegenheid voor en naast de woning;
- Rustige, centrale ligging met alle voorzieningen binnen handbereik.
De woning is lekker licht door de raamkozijnen in de zijgevel en grote raamkozijn achter met loopdeur naar de tuin.
De tuin: een heerlijk zonnige plek! Een fijne stenen berging achter in de tuin voor het stallen van je fietsen is altijd prettig toch!
De Bertus Aafjeshof is centraal gelegen met winkels, scholen, sportclubs en het openbaar vervoer op korte afstand. Naar de binnenstad van Hoorn fiets je in circa 15 minuten. Kortom: een instapklare, goed onderhouden woning met alles wat je nodig hebt.
Zie jij jezelf hier al wonen? De richtprijs is € 385.000,- k.k. en de oplevering stemmen we uiteraard samen af. Bel ons op 0229 27 96 97 voor een uitgebreide rondleiding. We laten je deze fijne woning graag zien!
Heb je behoefte aan een professional die je adviseert? Schakel dan je eigen NVM-aankoopmakelaar in. Jouw NVM-aankoopmakelaar komt op voor jouw belang en bespaart je tijd, geld en zorgen. Adressen van collega NVM-aankoopmakelaars vind je op Funda.
Foto's
Kenmerken
Overdracht
- Vraagprijs
- € 385.000 k.k.
- Vraagprijs per m²
- € 3.850
- Aangeboden sinds
- 13 november 2025
- Status
- Beschikbaar
- Aanvaarding
- In overleg
Bouw
- Soort woning
- Woonhuis
- Bouwjaar
- 1995
- Soort dak
- Schilddak
Oppervlakten en inhoud
- Oppervlakte wonen
- 100 m²
- Oppervlakte externe bergruimte
- 8 m²
- Perceel
- 184 m²
- Inhoud
- 354 m³
Indeling
- Aantal kamers
- 5
- Aantal slaapkamers
- 4
- Aantal badkamers
- 1
- Badkamervoorzieningen
- Wastafelmeubel en inloopdouche
- Aantal woonlagen
- 3
- Voorzieningen
- Mechanische ventilatie
Energie
- Energielabel
- A
- Isolatie
- Dakisolatie, muurisolatie, vloerisolatie en hr glas
- Verwarming
- Hete lucht verwarming
- Warm water
- Cv-ketel
Buitenruimte
- Ligging
- Aan rustige weg, in woonwijk en beschutte ligging
- Tuin
- Achtertuin en voortuin
- Achtertuin
- 67 m² gelegen op het zuidoosten met achterom
Bergruimte
- Schuur/berging
- Vrijstaand steen
- Voorzieningen
- Voorzien van elektra
Garage
- Soort garage
- Geen garage